Bếp nhà hàng - Bếp công nghiệp

ĐOÀN GIA CHUYÊN CUNG CẤP DỊCH VỤ THIẾT KẾ & THI CÔNG TRỌN GÓI BẾP CÔNG NGHIỆP, BẾP NHÀ HÀNG
Đoàn Gia cung cấp giải pháp thiết kế và thi công bếp công nghiệp toàn diện, tối ưu hóa không gian sử dụng, nâng cao hiệu quả vận hành. Từ mô hình bếp nhà hàng, khách sạn đến khu bếp tập thể quy mô lớn, mỗi công trình đều được triển khai bài bản, đúng tiến độ và đảm bảo tiêu chuẩn về an toàn – tiện nghi – công năng, giúp hệ thống bếp sẵn sàng vận hành ổn định ngay từ ngày đầu khai trương.
Quy trình làm việc được xây dựng rõ ràng qua 6 bước cụ thể, minh bạch từ khâu tư vấn đến hoàn thiện. Đặc biệt, khách hàng sẽ được MIỄN PHÍ hoàn toàn khi tư vấn, khảo sát mặt bằng và thiết kế bản vẽ 2D sơ bộ. Sau khi ký hợp đồng, bản thiết kế 3D chi tiết sẽ được triển khai, giúp hình dung trực quan toàn bộ không gian bếp trước khi thi công thực tế.



QUY TRÌNH HỢP TÁC 6 BƯỚC CỦA ĐOÀN GIA: ĐƠN GIẢN, MINH BẠCH, TỐI ƯU

Bước 1: Tư vấn
Đoàn Gia tiếp nhận thông tin từ chủ đầu tư về mô hình kinh doanh (nhà hàng, khách sạn, quán bar, bếp ăn công nghiệp,...), ngân sách dự kiến và các yêu cầu đặc thù nhằm đảm bảo giải pháp thiết kế và lắp đặt phù hợp với định hướng kinh doanh của từng khách hàng.
Bước 2: Khảo sát mặt bằng
Đội ngũ kỹ sư Đoàn Gia sẽ tiến hành khảo sát và đo đạc trực tiếp tại mặt bằng để có cơ sở báo giá và đề xuất phương án bố trí thiết bị phù hợp nhất với mô hình kinh doanh, diện tích của khách hàng.
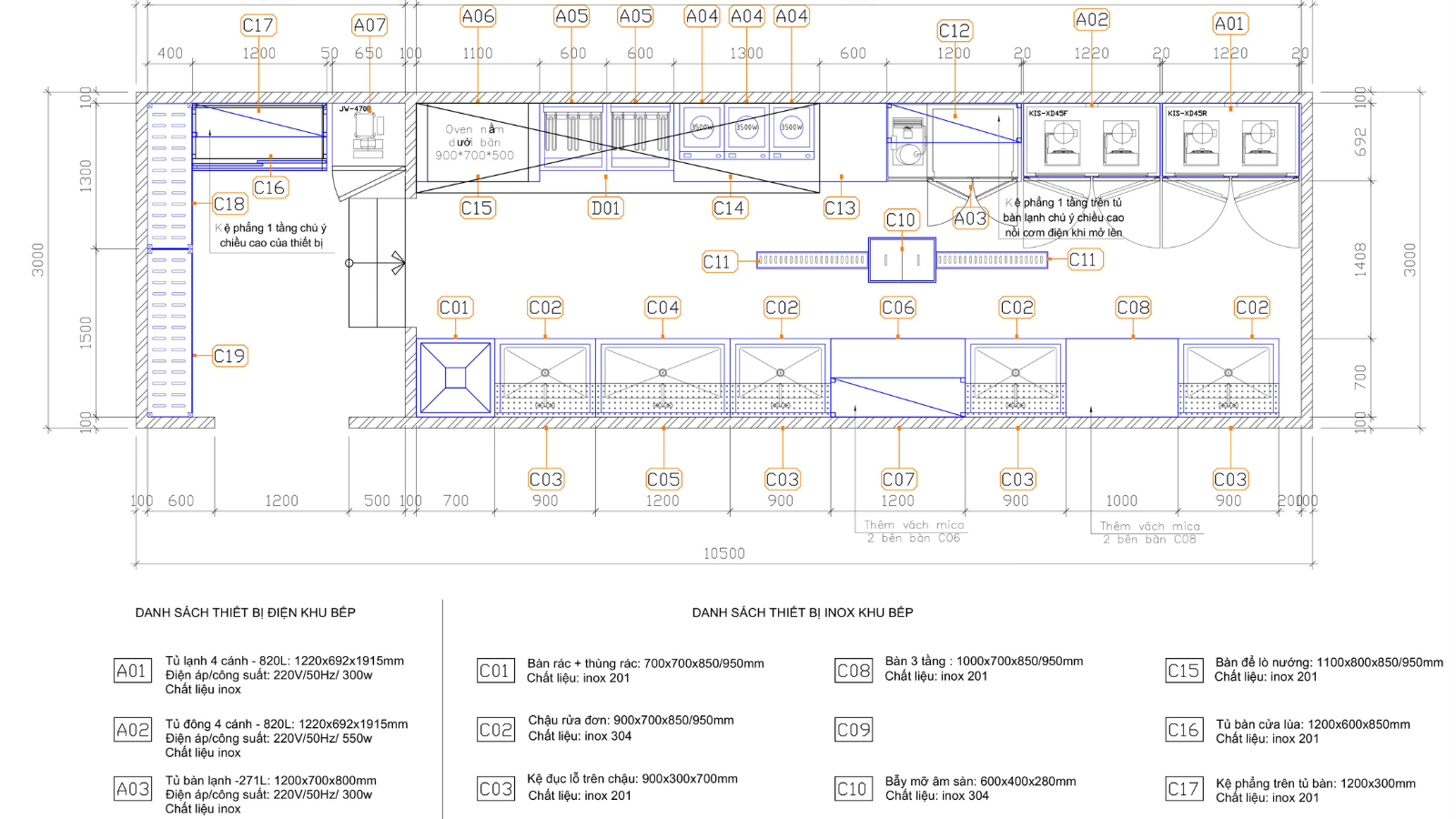
Bước 3: Thiết kế bản vẽ 2D & 3D
Sau khi có thông số về mặt bằng, vị trí lắp đặt của từng thiết bị bếp, Đoàn Gia sẽ tiến hành lên bản vẽ thiết kế 2D MIỄN PHÍ. Điều này, giúp khách hàng dễ dàng hiểu rõ về bố cục không gian bếp, đảm bảo sự hợp lý và an toàn trong quá trình thi công.
Khi tiến hành ký hợp đồng chính thức, đội kỹ sư sẽ tiến hành dựng bản vẽ 3D về không gian bếp HOÀN TOÀN MIỄN PHÍ, giúp mô phỏng trực quan không gian bếp sau khi hoàn thiện. Dựa vào bảng thiết kế 3D, khách hàng có thể hình dung rõ ràng về bố cục, màu sắc và thiết kế tổng thể của khu bếp, đặc biệt hữu ích cho những nhà hàng cần thiết kế bếp sang trọng, hiện đại.

Quy trình thực hiện bản vẽ:
- Bước 1: Lên bản vẽ bố trí công năng 2D, sau khi đo đạc chi tiết hiện trạng
- Bước 2: Chỉnh sửa và thống nhất bản vẽ bố trí công năng.
- Bước 3: Lập dự toán báo giá thi công
- Bước 4: Lên thiết kế 3D cho các khu vực bếp
Bước 4: Thi công và lắp đặt thiết bị bếp công nghiệp
Đội ngũ kỹ thuật của Đoàn Gia tiến hành thi công và lắp đặt theo đúng bản vẽ đã duyệt, đảm bảo từng thiết bị được bố trí chính xác, vận hành ổn định ngay từ giai đoạn đầu.
Đoàn Gia luôn tuân thủ nghiêm ngặt các tiêu chuẩn an toàn trong lắp đặt hệ thống bếp, từ khu nấu, khu rửa, điện – nước đến hệ thống thông gió. Đồng thời, Đoàn Gia phối hợp chặt chẽ với các đơn vị thi công khác (thợ điện, nước...) để đảm bảo tiến độ công trình không bị gián đoạn.

Bước 5: Kiểm tra, chạy thử và bàn giao công trình hoàn thiện
Trước khi bàn giao chính thức, Đoàn Gia tổ chức chạy thử toàn bộ hệ thống thiết bị để đảm bảo mọi hoạt động vận hành đúng theo tiêu chuẩn kỹ thuật và yêu cầu sử dụng.
Sau khi nghiệm thu thành công, đội ngũ kỹ thuật sẽ hướng dẫn chi tiết quy trình vận hành, vệ sinh và bảo dưỡng thiết bị và cung cấp tài liệu kỹ thuật đi kèm giúp nhân sự vận hành chủ động và hiệu quả hơn trong công việc.
Bước 6: Dịch vụ bảo hành và bảo trì định kỳ
Toàn bộ thiết bị được bảo hành theo chính sách của nhà sản xuất. Đoàn Gia cam kết tiếp nhận và xử lý yêu cầu bảo hành nhanh chóng, đảm bảo hệ thống bếp hoạt động liên tục, không ảnh hưởng đến hoạt động kinh doanh.
Ngoài bảo hành, Đoàn Gia cung cấp dịch vụ bảo trì định kỳ, kiểm tra và bảo dưỡng hệ thống nhằm duy trì hiệu suất vận hành, phát hiện và xử lý sớm các sự cố, giúp kéo dài tuổi thọ thiết bị và tối ưu chi phí vận hành cho khách hàng.

TẠI SAO KHÁCH HÀNG TIN TƯỞNG HỢP TÁC VỚI ĐOÀN GIA?
- Hơn 17 năm kinh nghiệm, trong lĩnh vực tư vấn, thiết kế, thi công và cung cấp thiết bị cho nhiều thương hiệu lớn như CJ Group, Lotteria, Aeon Mall,...
- Đội ngũ hơn 150 kỹ sư thiết kế điện lạnh, chuyên môn cao đảm bảo đề xuất các phương án phù hợp để khai thác tối đa diện tích khu vực bếp.
- Giải pháp hiệu suất cao: Thiết kế không gian bếp hợp lý, tối ưu hiệu suất nhưng vẫn đảm bảo an toàn là ưu tiên của Đoàn Gia. Các thiết bị chất lượng cao, tiết kiệm năng lượng và giảm thiểu rủi ro, giúp bếp nhà hàng hoạt động hiệu quả và bền vững.
- Sản phẩm chính hãng, chất lượng cao: Đoàn Gia là nhà phân phối chính thức của các thương hiệu uy tín như: KISTEM, LG, LASSELE, cam kết cung cấp thiết bị bếp công nghiệp chính hãng 100%, tối ưu hóa công năng, tiết kiệm chi phí.
- Giá cả cạnh tranh, ưu đãi hấp dẫn: Đoàn Gia cam kết giá bán tốt nhất trên thị trường, đi kèm nhiều chương trình khuyến mãi, chiết khấu hấp dẫn, giúp khách hàng tối ưu chi phí đầu tư.
- Bảo hành chính hãng: Thiết bị được bảo hành chính hãng 12 tháng với đội ngũ kỹ thuật hỗ trợ 24/7, đảm bảo xử lý nhanh chóng các vấn đề phát sinh.
- Giao hàng nhanh chóng: Cung cấp dịch vụ giao hàng tận nơi trên toàn quốc, miễn phí vận chuyển tại Thành phố Hồ Chí Minh.
Liên hệ ngay với Đoàn Gia để được tư vấn giải pháp thiết kế & thi công tối ưu, chuyên biệt cho từng mô hình nhà hàng, khách sạn hay bếp ăn công nghiệp. Đảm bảo tiến độ, an toàn, hiệu quả vận hành vượt trội.
- Hotline/ Zalo: Ms. Như: 090 149 8900 - Mr. Viễn: 090 145 8900
- Email: sales@doangia.vn
- Showroom: N7 Cư Xá Tân Cảng, Điện Biên Phủ, Phường 25, Quận Bình Thạnh, Thành phố Hồ Chí Minh.







